La pandemia ha sido un catalizador para muchas familias que buscan un estilo de vida más saludable y en contacto con la naturaleza. Este es el caso de una familia que decidió dejar atrás la vida en un departamento en plena ciudad para construir su sueño: la Casa Jardín, ubicada en San Eliseo Golf & Country Club, un proyecto diseñado por el reconocido estudio Schulman Arquitectura.
El proyecto original fue concebido para un barrio diferente, pero cuando llegó el momento de materializarlo, la familia optó por un nuevo entorno. Este cambio de ubicación implicó una reestructuración del diseño inicial, pero siempre manteniendo las premisas de los propietarios y del estudio de arquitectura. La flexibilidad y adaptabilidad del diseño son características que destacan en este proyecto, reflejando la capacidad de Schulman Arquitectura para responder a las necesidades cambiantes de sus clientes.
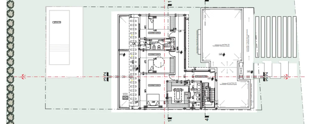
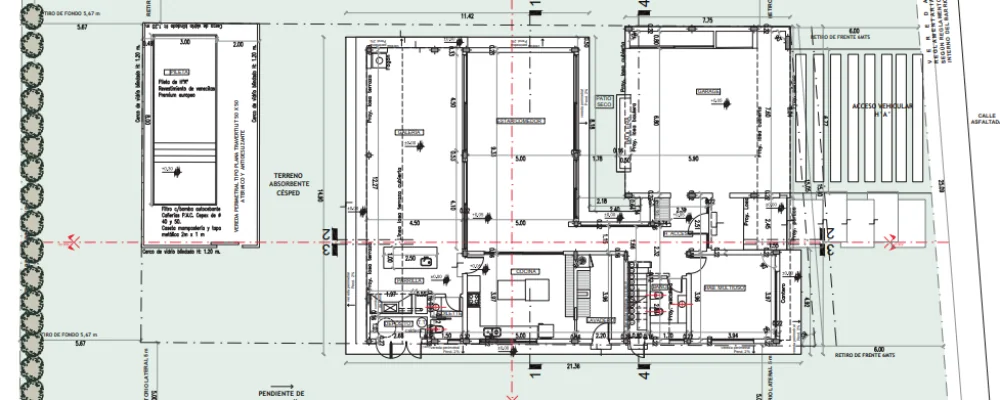
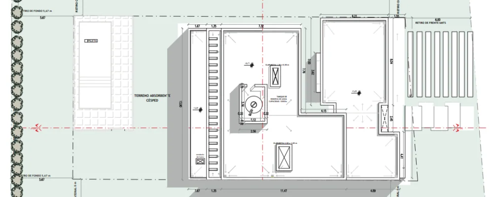
La Casa Jardín se asienta en un lote de 1.066 m², con una superficie cubierta de 271 m² y 135 m² de espacios semicubiertos. En la planta baja, se distribuyen los accesos peatonales y vehiculares, así como los espacios públicos y de servicio. La vivienda se caracteriza por sus amplios ventanales con doble vidrio hermético (DVH) y una textura similar a la madera, que permiten la entrada de luz natural y ofrecen vistas al parque y la piscina. Esta elección de diseño no solo maximiza la luminosidad, sino que también crea una conexión visual constante con el entorno natural.
Los materiales utilizados en la construcción son de origen natural, destacando la piedra Voladura Tandil, que armoniza con el tono de las paredes exteriores, el hormigón visto y el color de las aberturas. Esta elección de materiales no solo aporta estética, sino que también refuerza el compromiso de la familia con un estilo de vida sostenible y en sintonía con la naturaleza. Además, la casa cuenta con patios internos que permiten disfrutar del verde desde todos los ambientes, creando un ambiente de tranquilidad y bienestar.







En la planta alta, el diseño se centra en maximizar la entrada de luz solar y la vegetación, garantizando vistas hacia la piscina desde los balcones de las habitaciones. Este enfoque asegura un 100% de privacidad en las áreas de descanso y aseo personal, permitiendo a los habitantes disfrutar de su espacio sin interrupciones. La disposición de los ambientes ha sido cuidadosamente pensada para fomentar la interacción familiar y el disfrute de la vida al aire libre.
La familia ha encontrado en la Casa Jardín un espacio donde sus hijos pueden crecer al aire libre, disfrutando de un entorno saludable y natural. Niños felices, padres felices, es el lema que refleja la satisfacción de haber tomado esta decisión que transforma su calidad de vida. La Casa Jardín no solo es un hogar, sino un estilo de vida que promueve la salud, la felicidad y la conexión con la naturaleza.
Este proyecto, realizado por Schulman Arquitectura, es un ejemplo claro de cómo la arquitectura puede responder a las necesidades contemporáneas de las familias, ofreciendo soluciones que priorizan el bienestar y la calidad de vida. La Casa Jardín se erige como un símbolo de esperanza y renovación en tiempos desafiantes, demostrando que es posible construir un futuro más saludable y en armonía con el entorno.







